We submitted our site engineering plan to the town and applied for a soil moving permit.
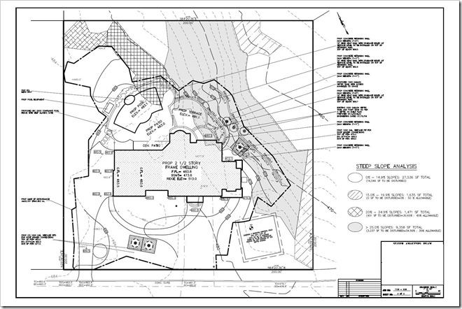
We thought we would have had a variance free plan, but as it turns out the existing driveway, which is in the no disturbance area, is not grandfathered since we are taking down the existing home. Also, since one of the new retaining walls is connected to the house and the bottom elevation of the wall is 6 inches lower then the house foundation, the roof ridge elevation is now considered 6 inches to high (there is a 40 foot height restriction). Rather then change the designs, we decided to apply for two variances – one for allowing the drive way to remain in the existing location and be expanded, the other for allowing the roof ridge height to exceed the 40 feet maximum.
The variances, required us to send letters to homes within a 200 foot radius and also put a notice in the newspaper. The planning meeting is this week. Hopefully we will get approval with only meeting.
We also had to submit the plans to the county soil conservation committee. They approved them on the first pass.
Soil Moving Plan
We thought we would have had a variance free plan, but as it turns out the existing driveway, which is in the no disturbance area, is not grandfathered since we are taking down the existing home. Also, since one of the new retaining walls is connected to the house and the bottom elevation of the wall is 6 inches lower then the house foundation, the roof ridge elevation is now considered 6 inches to high (there is a 40 foot height restriction). Rather then change the designs, we decided to apply for two variances – one for allowing the drive way to remain in the existing location and be expanded, the other for allowing the roof ridge height to exceed the 40 feet maximum.
The variances, required us to send letters to homes within a 200 foot radius and also put a notice in the newspaper. The planning meeting is this week. Hopefully we will get approval with only meeting.
We also had to submit the plans to the county soil conservation committee. They approved them on the first pass.
Slope Analysis Plan
Comments
I too have a blog about my home construction process.
Give me a vist;
http://www.fromplattoplace.com